Apartamento Garden – Província de León | Boa Vista – Curitiba
R$ 470.000
![]()
![]()
![]()
DESCRIÇÃO:
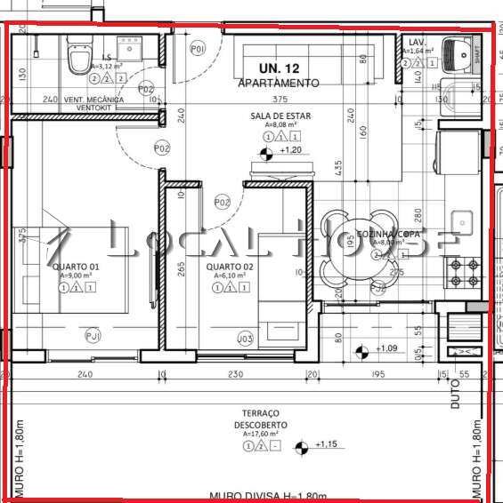
Apartamento Garden – Província de León | Boa Vista – Curitiba
Apartamento com 2 quartos, 44 m² de área interna, mais 17,60 m² de terraço descoberto, totalizando 61,60 m² privativos.
Conta ainda com 1 vaga de garagem.
Endereço: Rua José Merhy, 1360 – Boa Vista, Curitiba – PR, CEP 82560-440.
Ótima oportunidade em uma região tranquila e de fácil acesso.
LOCALIZAÇÃO:
Bairro: Boa Vista
Cidade: Curitiba
Estado: PR
Endereço: Rua José Merhy
Número: 1360
Compl.:
MAIS OPÇÕES NO BAIRRO: BOA VISTA
Residencial Ávila – Boa Vista Rua Nossa Senhora de Nazaré, 1416
Residencial Ávila – Apartamento 2 quartos sendo 52m² privativo mais 25m² varanda GardenEndereço: Rua Nossa Senhora de Nazaré, 1416, Boa Vista – Curitiba/PRO Residencial Ávila é um empreendimento exclusivo, inspirado na charmosa região de Ávila, na Espanha. Com uma fachada sofisticada que combina tijolos e concreto, o projeto remete às imponentes muralhas da província espanhola, proporcionando um design único e atemporal.São 19 apartamentos modernos de 1 e 2 quartos, com metragens entre 31m² e 52m², incluindo sacadas e varandas com vistas privilegiadas.? Condomínio fechado para maior segurança? Churrasqueira condominial para momentos de lazer? Espaço gourmet sofisticado? Elevador para mais conforto? Gás central e interfone? Playground para as crianças? Portão eletrônico para controle de acesso? Sala fitness para um estilo de vida saudável? Terraço coletivo com vista incrívelEntrega prevista para março de 2026Garanta já seu espaço no Residencial Ávila e viva com exclusividade, conforto e segurança!
Boa Vista, Curitiba, PR
Garden Sevilha Boa Vista - Apartamento 3 Quartos Andar Alto!
Apartamento de 3 Quartos com Suíte à Venda no Boa Vista, Curitiba-PREste apartamento de 3 quartos (sendo 1 suíte) no Residencial Garden Sevilha, em Boa Vista, oferece 70 m² de área privativa e uma excelente infraestrutura de lazer e segurança. Ideal para quem busca conforto e praticidade em um dos bairros mais valorizados de Curitiba.Características do Imóvel:3 Dormitórios (1 Suíte)Ampla sala de estar e jantarCozinha funcionalBanheiro socialÁrea de serviçoSacada1 vaga de garagemÁrea de Lazer Completa:Salão de festas adulto e infantil3 salões com churrasqueiraAcademia, cinema e salão de jogosPiscina aquecida e saunaQuadra poliesportiva e campo de mini golfeEspaço kids e brinquedotecaVantagens da Localização:Bairro Boa Vista, tranquilo e seguroPróximo ao Parque BacacheriAcesso rápido ao centro de CuritibaSupermercados, escolas e bancos nas proximidadesIdeal para quem busca qualidade de vida com praticidade e lazer completo.Endereço: Residencial Garden Sevilha, R. Jovino do Rosário, 1790 - Boa Vista, Curitiba
Boa Vista, Curitiba, PR
Apartamento Garden à venda em Curitiba, Boa Vista, com 3 quartos, 104,58m²
Hike representa uma oportunidade rara de morar em um dos 45 imóveis únicos, cada um projetado para oferecer uma experiência de vida inigualável. Preço e disponibilidade do imóvel sujeitos a alteração sem aviso prévio.RI do empreendimento: 8C8585
Boa Vista, Curitiba, PR

